Handbook

MENU

Conference Room

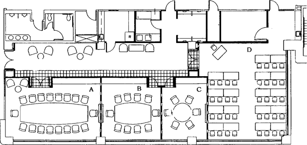
Conference Center Floor Plan
 

Conference room description and layout:

 

 

Room

 

Number of People

 

Set Up/Rental Fee

Conference Room A

16 - 18

No charge

Conference Room B

8 - 10

No charge

Conference Room C

4 - 6

No charge

Conference Room D

< 36

No charge