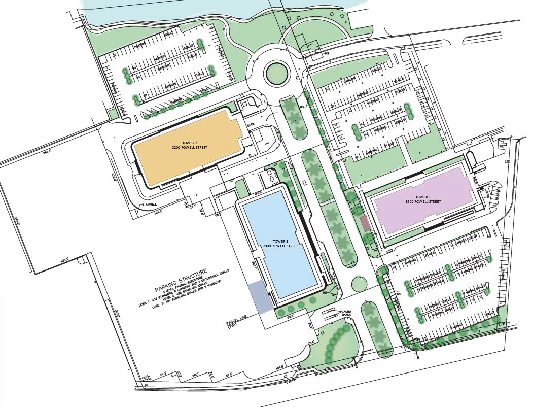
Bike Rack Site Plan

Bike racks are distributed evenly throughout the site and are available on firstcome first-serve basis only. Bike locks are not provided and will need to be brought by the individual owner for use.
Please note that bicycles cannot be left overnight or stored at any time. These bicycles will be considered abandoned and the locks will be cut for removal